Siema
Przejrzałem schematy i okazało się że szyby były różnie sterowane w różnych rocznikach. W 93, był tylko jeden bezpiecznik i na twoje szczęście spartański system sterowania bez udziału układu elektronicznego.
Ja obstawiam że zniknęła masa.
Po pierwsze wyciągnij przełącznik z lewych drzwi i odepnij kostkę sterowania szybami, sprawdź czy na czarnym przewodzie jest przejście do karoserii. Jeżeli nie ma to trzeba odszukać złączkę C267, która jest gdzieś nad nogami kierowcy. To prawdopodobnie ona zawiodła. Niestety nie mam jest rysunku, FORD nie dodał go do manuala. Dalej jest C300 ale tam dochodzi tez wiele innych mas więc to raczej odpada.
Powodzenia.
			
							Kłopot z elektrycznymi szybami
- avel
- Posty: 466
- Rejestracja: 2009-04-26 17:16
- Samochód: Probe II 2.0 1994
- Galeria: viewtopic.php?t=20438
- Lokalizacja: Unisław, kujawsko-pomorskie
Re: Kłopot z elektrycznymi szybami
Stare i zardzewiałe! Probe II 2.0 1994, było 
Audi A3 2.0TDI 170km quattro 2007, jest
			
						
Audi A3 2.0TDI 170km quattro 2007, jest
Re: Kłopot z elektrycznymi szybami
Dziękuję ci bardzo za poświęcony czas zaraz postaram się to ogarnąć a powiedz mi w drzwiach od kierowcy jest czarna kostka przypominajaca jakis sterownik co to jest odpiołem ja przez chwile to 0 zmian szyby jak nie działały tak nie działają ale lusterka  tak wiecie co to jest  pozdrawiam
			
			
									
						
										
						- avel
- Posty: 466
- Rejestracja: 2009-04-26 17:16
- Samochód: Probe II 2.0 1994
- Galeria: viewtopic.php?t=20438
- Lokalizacja: Unisław, kujawsko-pomorskie
Re: Kłopot z elektrycznymi szybami
Jak znajdziesz chwilę to pstryknij temu czemuś zdjecie, Będzie łatwiej.
			
			
									
						
							Stare i zardzewiałe! Probe II 2.0 1994, było 
Audi A3 2.0TDI 170km quattro 2007, jest
			
						
Audi A3 2.0TDI 170km quattro 2007, jest
- Robert
- Posty: 12613
- Rejestracja: 2004-10-21 19:12
- Samochód: Probe GT2.0'89; ForTwo 0.6turbo; HRV 1.6
- Galeria: viewtopic.php?t=6900
- Lokalizacja: Leszno (maz)
- Kontakt:
Re: Kłopot z elektrycznymi szybami
Jeśli sterownik, o którym piszesz, podpięty jest do przewodów okna, może to być wyrzeźbione domykanie automatyczne lub z pilota, jeśli nie, to obstawiam jakiś antynapad. 
Kompletna procedura w Twoim przypadku (oba okna nie działają). Punktor (kropka) kończy algorytm namierzając problem, w pozostałych przypadkach idziesz dalej. Starałem się najjaśniej, jak się da.
Sprawdź bezpiecznik POWER WINDOW 30A w kabinie (najlepiej wyjmij i włóż inny).Spalony?
Wyłącz kluczyk.
Odłącz wtyczkę głównego przełącznika okien (w drzwiach kierowcy).
Włącz kluczyk.
Zmierz napięcie w czarno-czerwonym (BK/R) przewodzie we wtyczce.
Mniejsze niż 10V?
Zmierz opór między czarnym (BK) przewodem we wtyczce głownego (kierowcy) przełącznika okien a masą.
Większa niż 5 omów?
Podłącz wszystkie odłączone wtyczki.
Wyjmij (bez odłączania) główny przełącznik okien (kierowcy).
Włącz kluczyk.
Sprawdź napięcie na następujacych 4 przewodach głównego przełącznika (kierowcy) podczas włączania odpowiednich funkcji:
Odłącz główny przełącznik okien (kierowcy), przełącznik pasażera i wtyczkę silnika lewego okna.Zmierz rezystancję przewodów pomiędzy wtyczką głównego przełącznika (kierowcy) i wtyczką lewego silniczka (kierowcy) albo prawego przełącznika (pasażera):
Podłącz wszystko oprócz przełącznika pasażera.
Włącz kluczyk.
Zmierz napięcie na czarno-czerwonym (BK/R) przewodzie przełącznika pasażera.
Jest mniejsze niż 10V?
Podłącz wszystkie wtyczki.
Wyjmij bez odłączania przełącznik pasażera.
Włącz kluczyk.
Sprawdź napięcie na przewodach podczas przełączania:
Odłącz przełącznik silniczek pasażera.
Zmierz rezystancje pomiędzy wtyczką pasażera a wtyczką silniczka (z obu stron ten sam kolor) na przewodach (oddzielnie) czerwonym (R) i zielonym (GN).
Czy opór jest mniejszy, niż 5 omów?
			
			
									
						
							Kompletna procedura w Twoim przypadku (oba okna nie działają). Punktor (kropka) kończy algorytm namierzając problem, w pozostałych przypadkach idziesz dalej. Starałem się najjaśniej, jak się da.
Sprawdź bezpiecznik POWER WINDOW 30A w kabinie (najlepiej wyjmij i włóż inny).Spalony?
- Wymień, włącz kluczyk, spróbuj otworzyć - zamknąć okna.
 Ponownie sprawdź bezpiecznik.
 Znów się spalił?- Wyłącz kluczyk.
 Znajdź i rozłącz 16stykową wtyczkę skrzynki bezpieczników.Znajdź i rozłącz wtyczki przełączników kierowcy i pasażera.Zmierz opór pomiędzy czarno-czerwonym (BK/R) przewodem w 16pinowej wtyczce bezpieczników a masą.
 Mniejszy niż 5 omów?- Napraw przetarty (zwarty do masy) czarno-czerwnony (BK/R) przewód między przełącznikami sterowania okien a skrzynką bezpieczników.
 
 Zmierz opór pomiędzy przewodami zielono-niebieskim (GN/BL), czerwono-niebieskim (R/BL), zielono-białym (GN/W) i czerwono-białym (R/W) a masą.
 Którakolwiek wartość jest poniżej 5 omów?- Napraw przetarty (zwarty do masy) przewód.
 
 
- Wyłącz kluczyk.
Wyłącz kluczyk.
Odłącz wtyczkę głównego przełącznika okien (w drzwiach kierowcy).
Włącz kluczyk.
Zmierz napięcie w czarno-czerwonym (BK/R) przewodzie we wtyczce.
Mniejsze niż 10V?
- Napraw czarno-czerwony (BK/R) przewód między wtyczką a skrzynką bezpieczników.
Zmierz opór między czarnym (BK) przewodem we wtyczce głownego (kierowcy) przełącznika okien a masą.
Większa niż 5 omów?
- Napraw przerwany czarny (BK) przewód do masy.
Podłącz wszystkie odłączone wtyczki.
Wyjmij (bez odłączania) główny przełącznik okien (kierowcy).
Włącz kluczyk.
Sprawdź napięcie na następujacych 4 przewodach głównego przełącznika (kierowcy) podczas włączania odpowiednich funkcji:
- lewe okno w górę - 12V na przewodzie zielono-niebieskim (GN/BL), 0V na pozostałych,
 lewe okno w dół - 12V na przewodzie czerwono-niebieskim (R/BL), 0V na pozostałych,
 prawe okno w górę - 12V na przewodzie zielono-białym (GN/W, 0V na pozostałych,
 prawe okno w dół - 12V na przewodzie czerwono-białym (R/W), 0V na pozostałych.
- Wymień główny przełącznik okien (kierowcy)
Odłącz główny przełącznik okien (kierowcy), przełącznik pasażera i wtyczkę silnika lewego okna.Zmierz rezystancję przewodów pomiędzy wtyczką głównego przełącznika (kierowcy) i wtyczką lewego silniczka (kierowcy) albo prawego przełącznika (pasażera):
- zielono-niebieski (GN/BL) do silniczka
 czerwono-niebieski (R/BL) do silniczka
 zielono-biały (GN/W) do przełącznika pasażera
 czerwono-biały (R/W) do przełącznika pasażera
- Napraw uszkodzony przewód.
- Nie, ale lewe okno nie działa - wymień silnik lewego okna
- Nie, ale prawe okno nie działa - idź dalej.
Podłącz wszystko oprócz przełącznika pasażera.
Włącz kluczyk.
Zmierz napięcie na czarno-czerwonym (BK/R) przewodzie przełącznika pasażera.
Jest mniejsze niż 10V?
- Napraw czarno-czerwony (BK/R) przewód między przełącznikiem pasażera a skrzynką bezpieczników.
Podłącz wszystkie wtyczki.
Wyjmij bez odłączania przełącznik pasażera.
Włącz kluczyk.
Sprawdź napięcie na przewodach podczas przełączania:
- góra - 12V na przewodzie czerwonym (R), 0V na zielonym (GN),
 dół - na odwrót.
- Jeżeli napięcie przekracza zakres (0V = 0-1V, 12V = 10-14V) - wymień przełącznik pasażera.
Odłącz przełącznik silniczek pasażera.
Zmierz rezystancje pomiędzy wtyczką pasażera a wtyczką silniczka (z obu stron ten sam kolor) na przewodach (oddzielnie) czerwonym (R) i zielonym (GN).
Czy opór jest mniejszy, niż 5 omów?
- Tak - wymień silniczek prawego okna,
- Nie - napraw odpowiedni przewód.
Poświęć niecałe 2 minuty na naukę korzystania z forum:  Lekcja 1 (bardzo krótka) i
 Lekcja 1 (bardzo krótka) i  Lekcja 2 (krótka)
 Lekcja 2 (krótka)
 
 
 '89 2.0 Turbo downgrade
'89 2.0 Turbo downgrade
			
						 Lekcja 1 (bardzo krótka) i
 Lekcja 1 (bardzo krótka) i  Lekcja 2 (krótka)
 Lekcja 2 (krótka) 
 
 '89 2.0 Turbo downgrade
'89 2.0 Turbo downgrade- avel
- Posty: 466
- Rejestracja: 2009-04-26 17:16
- Samochód: Probe II 2.0 1994
- Galeria: viewtopic.php?t=20438
- Lokalizacja: Unisław, kujawsko-pomorskie
Re: Kłopot z elektrycznymi szybami
Robert, 
Tutorial piękny, tylko że niezupełnie pasuje do tego problemu
Raz: Kolega pisał że bezpiecznik ma cały
Dwa: to rocznik 93, a Twój opis jest do późniejszych roczników. W aucie kolegi nawet nie ma takich przewodów jak
Pozdrawiam, Avel
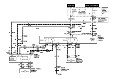
Dla porównania, rocznik 93 oraz 94 i dalej
			
							
			
									
						
							Tutorial piękny, tylko że niezupełnie pasuje do tego problemu
Raz: Kolega pisał że bezpiecznik ma cały
Dwa: to rocznik 93, a Twój opis jest do późniejszych roczników. W aucie kolegi nawet nie ma takich przewodów jak
Idea pomiarów oporów na przewodach doprowadzających napięcie i masie oczywiście słuszna, ale trzeba ja zaadaptować do starszego rozwiązania.zielono-niebieskim (GN/BL), czerwono-niebieskim (R/BL), zielono-białym (GN/W) i czerwono-białym (R/W)
Pozdrawiam, Avel
Dla porównania, rocznik 93 oraz 94 i dalej
Stare i zardzewiałe! Probe II 2.0 1994, było 
Audi A3 2.0TDI 170km quattro 2007, jest
			
						
Audi A3 2.0TDI 170km quattro 2007, jest
- Robert
- Posty: 12613
- Rejestracja: 2004-10-21 19:12
- Samochód: Probe GT2.0'89; ForTwo 0.6turbo; HRV 1.6
- Galeria: viewtopic.php?t=6900
- Lokalizacja: Leszno (maz)
- Kontakt:
Re: Kłopot z elektrycznymi szybami
Jedno - to jest pełny opis procedury, może się przydać komuś innemu, drugie - powiedzmy, że aż w 99% wierzę na odległość w umiejętność oceny bezpiecznika. Pozostaje ten jeden procent niewiary, który - jak wynika z doświadczenia - okazuje się wyjątkowo nadreprezentowany w takich przypadkach.avel pisze:Raz: Kolega pisał że bezpiecznik ma cały

Trzecie - zgaduję, że skopiowałeś schemat z serwisówki'93 z opcji EVTM, Cell 100. W tym samym roczniku w SERVICE, Group 01, Section 01-11, Diagnosing and Testing, Electrical Schematic znajdziesz: a w Diagnosing and Testing procedurę, którą przetłumaczyłem (upraszczając skoki po punktach i dodając od siebie tylko nacisk na sprawdzenie najprostszego, tj. jednak bezpiecznika).avel pisze:Dwa: to rocznik 93, a Twój opis jest do późniejszych roczników.
Nie wiem, czemu schematy do pierwszego wypuszczonego rocznika się różnią między działami. Zrozumiałbym, gdyby w nowszych rocznikach przekleili ze starego i zapomnieli jeden z nich zaktualizować.
Sorry, jak już pisałem przy klimie, nie mam degeneracji, więc nie sprawdzę tych kolorów, oparłem się na (fabrycznym) źródle.
Poświęć niecałe 2 minuty na naukę korzystania z forum:  Lekcja 1 (bardzo krótka) i
 Lekcja 1 (bardzo krótka) i  Lekcja 2 (krótka)
 Lekcja 2 (krótka)
 
 
 '89 2.0 Turbo downgrade
'89 2.0 Turbo downgrade
			
						 Lekcja 1 (bardzo krótka) i
 Lekcja 1 (bardzo krótka) i  Lekcja 2 (krótka)
 Lekcja 2 (krótka) 
 
 '89 2.0 Turbo downgrade
'89 2.0 Turbo downgrade- avel
- Posty: 466
- Rejestracja: 2009-04-26 17:16
- Samochód: Probe II 2.0 1994
- Galeria: viewtopic.php?t=20438
- Lokalizacja: Unisław, kujawsko-pomorskie
Re: Kłopot z elektrycznymi szybami
Jakiś wałek jest w tych manualach, w 93 schemat ma różne oznaczenia kolorów w różnych działach (elektrycznie taki sam co widać w powyższych postach). W nowszych rocznikach schemat jest odpowiedni i zgadza się miedzy działami.Robert pisze: Nie wiem, czemu schematy do pierwszego wypuszczonego rocznika się różnią między działami. Zrozumiałbym, gdyby w nowszych rocznikach przekleili ze starego i zapomnieli jeden z nich zaktualizować.
Stare i zardzewiałe! Probe II 2.0 1994, było 
Audi A3 2.0TDI 170km quattro 2007, jest
			
						
Audi A3 2.0TDI 170km quattro 2007, jest

