Reflektory przednie?

Awatar użytkownika
Romas
Klubowicz
Posty: 5264
Rejestracja: 2009-12-23 22:35
Samochód: PROBE '94 2.5V6 GT MTX
Galeria: viewtopic.php?t=19226
Lokalizacja: Warszawa

Re: Reflektory przednie?

Post autor: Romas »

od fiata 126p można zaadoptować ale do 1-genu :wink:
Awatar użytkownika
KrecioPL
Klubowicz
Posty: 3440
Rejestracja: 2012-02-27 16:00
Samochód: Był: Probe II 2.5 V6 '97 || Jest: cokolwiek byle jeździć :)
Galeria: viewtopic.php?t=21787
Lokalizacja: Na wsi.

Re: Reflektory przednie?

Post autor: KrecioPL »

Można kupić zamienniki firmy Autopal po ok. 10-15zł/szt/
Bo w Biblii nie ma napisane aby nie cisnąc gazu do dechy
Awatar użytkownika
Dziki Beduin
Posty: 449
Rejestracja: 2014-08-18 21:56
Samochód: Ford Probe 2 / 1993r / 2.5 v6
Galeria: viewtopic.php?t=22388
Lokalizacja: Sosnowiec

Re: Reflektory przednie?

Post autor: Dziki Beduin »

Panowie podepnę się tutaj, chciałem się poradzić co sądzicie o takim oświetleniu w lampach probka, ledy z przetwornicami, ładnie świecą, odpowiednio ustawić żeby nie świeciło po oczach innym i bardzo przyjemnie można by przemieszczać się w nocy itp, a też to nie jest nielegalny HID. http://allegro.pl/nowosc-h4-led-philips ... 83983.html
Awatar użytkownika
mysz
Klubowicz
Posty: 1941
Rejestracja: 2010-04-03 15:02
Galeria: viewtopic.php?t=18115
Lokalizacja: wwa

Re: Reflektory przednie?

Post autor: mysz »

Hmm pytanie jakby to współgrało z naszymi odbłyśnikami. Myślę, że temat wart zainteresowania ;)
Było: Probe '94r
Jest: ST220 2005r
Awatar użytkownika
Dziki Beduin
Posty: 449
Rejestracja: 2014-08-18 21:56
Samochód: Ford Probe 2 / 1993r / 2.5 v6
Galeria: viewtopic.php?t=22388
Lokalizacja: Sosnowiec

Re: Reflektory przednie?

Post autor: Dziki Beduin »

No właśnie o to mi chodzi że fajna sprawa i niebiescy w razie czego nie mogą zabrać dowodu z prostego powodu to nie podrabiany HID tylko niezwykły LED ;D, zastanawiam się nad zakupem po wakacjach bo teraz kasy nie mam za bardzo na takie cudo. :)
Awatar użytkownika
KrecioPL
Klubowicz
Posty: 3440
Rejestracja: 2012-02-27 16:00
Samochód: Był: Probe II 2.5 V6 '97 || Jest: cokolwiek byle jeździć :)
Galeria: viewtopic.php?t=21787
Lokalizacja: Na wsi.

Re: Reflektory przednie?

Post autor: KrecioPL »

Z tego co mi się wydaje, źródło światła emitujące więcej niż 2000lumenów musi mieć system samopoziomowania i spryskiwacze.
Bo w Biblii nie ma napisane aby nie cisnąc gazu do dechy
Awatar użytkownika
Dziki Beduin
Posty: 449
Rejestracja: 2014-08-18 21:56
Samochód: Ford Probe 2 / 1993r / 2.5 v6
Galeria: viewtopic.php?t=22388
Lokalizacja: Sosnowiec

Re: Reflektory przednie?

Post autor: Dziki Beduin »

No chyba że tak.
Awatar użytkownika
mysz
Klubowicz
Posty: 1941
Rejestracja: 2010-04-03 15:02
Galeria: viewtopic.php?t=18115
Lokalizacja: wwa

Re: Reflektory przednie?

Post autor: mysz »

Co nie zmienia faktu, że co nielegalne, to fajne :P
Było: Probe '94r
Jest: ST220 2005r
Awatar użytkownika
Dziki Beduin
Posty: 449
Rejestracja: 2014-08-18 21:56
Samochód: Ford Probe 2 / 1993r / 2.5 v6
Galeria: viewtopic.php?t=22388
Lokalizacja: Sosnowiec

Re: Reflektory przednie?

Post autor: Dziki Beduin »

mysz pisze:Co nie zmienia faktu, że co nielegalne, to fajne :P
Lubie to. xD
Awatar użytkownika
infernoblade
Klubowicz
Posty: 1278
Rejestracja: 2013-10-03 20:04
Samochód: Ford Probe II 2.0 16v 94r. USDM, Probe II 2.0 94r rost style
Galeria: viewtopic.php?t=21646
Lokalizacja: Bielsko-Biała, Śląsk

Re: Reflektory przednie?

Post autor: infernoblade »

Mam pytanie co trzeba zmienić, żeby uzyskać możliwość regulacji wysokości lampy w eu tak jak w usa? Tzn Od czego to zależy na pewno trzeba mieć guziczek na konsoli centralnej i wiązkę do niego ale co jeszcze silniczki są takie same? Jak odłączyć automatyczne podnoszenie przy zapalaniu świateł? Przerabiał to już ktoś u siebie?
''Nic nie motywuje nas tak, jak ludzie, którzy w nas nie wierzą''

Posiadam części na sprzedaż II generacja 2.0 USA

Fiat 126p 92' Rosso Swift- był
Citroen Ax 92' Rouge Opera- był
Daihatsu Applause 93' PURE RED- był
Ford Probe 94' EU/USA Rio Red teraz Tangerine Frost Metalic- jest
Ford Probe 96' USA Laser Red - był
Peugeot 106 96' Laser Green. Metallic Lacquer- był
Ford Probe 94' EU Royal blue- był
Ford Probe 94' USA Black- był
Ford Probe 94' EU Rio Red- jest
Awatar użytkownika
Spider33
Posty: 1246
Rejestracja: 2008-01-05 12:23
Samochód: Probe x ∞
Galeria: viewtopic.php?t=20740
Lokalizacja: Skarżysko-Kamienna

Re: Reflektory przednie?

Post autor: Spider33 »

Wpisz w wyszukiwarkę śpioch i będziesz wszystko wiedział.
Awatar użytkownika
infernoblade
Klubowicz
Posty: 1278
Rejestracja: 2013-10-03 20:04
Samochód: Ford Probe II 2.0 16v 94r. USDM, Probe II 2.0 94r rost style
Galeria: viewtopic.php?t=21646
Lokalizacja: Bielsko-Biała, Śląsk

Re: Reflektory przednie?

Post autor: infernoblade »

Może źle się wyraziłem nie chcę robić śpiocha "on, off" Chcę włożyć oryginalną instalacje z Usa tak żebym mógł sobie otwierać lampy tak jak chce bez ich załączania. Innymi słowami chce żywcem przełożyć całą instalację.
''Nic nie motywuje nas tak, jak ludzie, którzy w nas nie wierzą''

Posiadam części na sprzedaż II generacja 2.0 USA

Fiat 126p 92' Rosso Swift- był
Citroen Ax 92' Rouge Opera- był
Daihatsu Applause 93' PURE RED- był
Ford Probe 94' EU/USA Rio Red teraz Tangerine Frost Metalic- jest
Ford Probe 96' USA Laser Red - był
Peugeot 106 96' Laser Green. Metallic Lacquer- był
Ford Probe 94' EU Royal blue- był
Ford Probe 94' USA Black- był
Ford Probe 94' EU Rio Red- jest
Awatar użytkownika
arko
Klubowicz
Posty: 589
Rejestracja: 2009-04-19 23:32
Samochód: II Gen. 95r EURO 2,5 V6 24V
Galeria: viewtopic.php?t=16280
Lokalizacja: Łódź

Re: Reflektory przednie?

Post autor: arko »

infernoblade pisze:Może źle się wyraziłem nie chcę robić śpiocha "on, off" Chcę włożyć oryginalną instalacje z Usa tak żebym mógł sobie otwierać lampy tak jak chce bez ich załączania. Innymi słowami chce żywcem przełożyć całą instalację.
O... nie wiedziałem o czymś takim :?: może więcej info na czym to polega i jak działa :P
JEST Ford Probe II gen. 2,5 V6 24V 95r.euro.
Jest Alfa Romeo 156 1,6 TS 1998r
Wcześniej Był I gen. 2,2 automat 91r.USA
Awatar użytkownika
avel
Posty: 466
Rejestracja: 2009-04-26 17:16
Samochód: Probe II 2.0 1994
Galeria: viewtopic.php?t=20438
Lokalizacja: Unisław, kujawsko-pomorskie

Re: Reflektory przednie?

Post autor: avel »

euro 93 ma przycisk do podnoszenia świateł na konsoli centralnej, i chodzi tutaj o wiązkę i puszkę bezpieczników.
da się tak przerobić w euro94 i dalej żeby dodać taki przycisk,
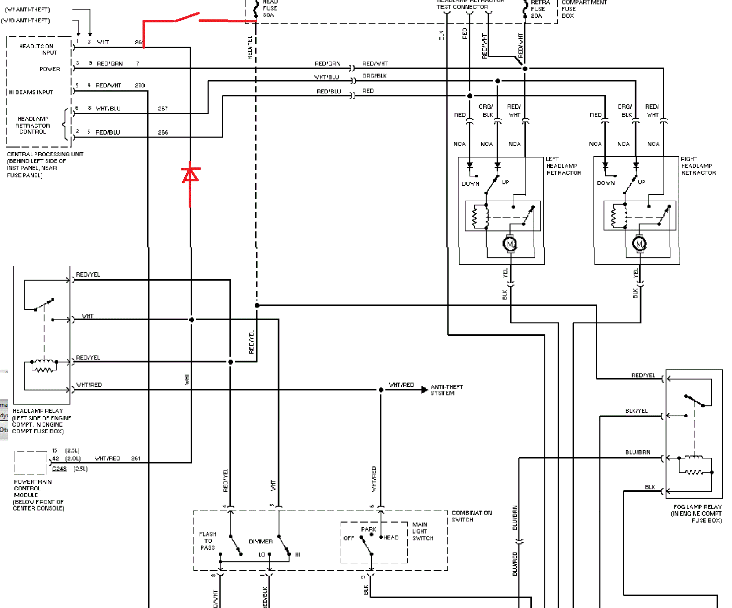
Podnoszeniem lamp zawiaduje CPU, wystarczy na "head lights on input" podać 12V i się podniosą. Na schemacie zaznaczyłem przeróbkę

Ciekawostka. Euro maja funkcję sygnału świetlnego z lamp głównych tylko jest ona wyłączona, przez przerwę we wiązce, wystarczy odtworzyć polaczenie z licznika do "hi beak input" i po pociągnięciu manetki lampy podniosą sie i schowają po 3 sekundach. Dokładnie tak zrobiłem u siebie i działa jak usdm.
Załączniki
probe podnoszenie lamp .gif
Stare i zardzewiałe! Probe II 2.0 1994, było :(
Audi A3 2.0TDI 170km quattro 2007, jest
Awatar użytkownika
malfoy12
Posty: 52
Rejestracja: 2015-10-16 00:50
Samochód: Ford Probe Mk2 2.5 V6 93r.
Galeria: viewtopic.php?t=23106
Lokalizacja: Żory, Polska

Re: Reflektory przednie?

Post autor: malfoy12 »

avel pisze:euro 93 ma przycisk do podnoszenia świateł na konsoli centralnej, i chodzi tutaj o wiązkę i puszkę bezpieczników.
da się tak przerobić w euro94 i dalej żeby dodać taki przycisk,
Podnoszeniem lamp zawiaduje CPU, wystarczy na "head lights on input" podać 12V i się podniosą. Na schemacie zaznaczyłem przeróbkę

Ciekawostka. Euro maja funkcję sygnału świetlnego z lamp głównych tylko jest ona wyłączona, przez przerwę we wiązce, wystarczy odtworzyć polaczenie z licznika do "hi beak input" i po pociągnięciu manetki lampy podniosą sie i schowają po 3 sekundach. Dokładnie tak zrobiłem u siebie i działa jak usdm.
Czyli trzeba pociągnąć kabel z licznika do "Hi beak input"?
Obrazek
Awatar użytkownika
pawlacz
Posty: 378
Rejestracja: 2012-07-24 23:41
Samochód: Probe II 2.5 v6 '93
Galeria: viewtopic.php?t=22222

Re: Reflektory przednie?

Post autor: pawlacz »

Czy są różnice pomiędzy silniczkami podnoszenia reflektora w II gen? Obojętne który rocznik?
Awatar użytkownika
Spider33
Posty: 1246
Rejestracja: 2008-01-05 12:23
Samochód: Probe x ∞
Galeria: viewtopic.php?t=20740
Lokalizacja: Skarżysko-Kamienna

Re: Reflektory przednie?

Post autor: Spider33 »

Wszystkie które miałem były takie same wiec roznic raczej nie ma.
Awatar użytkownika
-michal-
Posty: 982
Rejestracja: 2011-12-10 03:04
Samochód: Yugo Koral :P
Lokalizacja: Lublin, Chełm

Re: Reflektory przednie?

Post autor: -michal- »

Słuchajcie :P kupiłem na allegro dwa klosze firmy AUTOPAL, napisałem w formularzu, że ma być komplet na przód, czyli lewy i prawy klosz (facet w ogłoszeniu napisał, że posiada prawą i lewą stronę). Dzisiaj kurier przywiózł mi paczkę, patrzę, a obydwa klosze są identyczne, symbole na szkłach są takie same, na pudełkach również te same oznaczenia :roll:
Co jest do jasnej Anielki :evil: sprzedali mi dwa klosze na tą samą stronę, czy tak ma być :?:
Prośba do osób posiadających w swoich probasach klosze Autopal, zerknijcie czy wasze klosze są identyczne i mają na szkłach takie same symbole :)
A ja zaraz pisze e-mila do sprzedającego o co w tym chodzi :)
Oxanin pierwszej klasy :mrgreen:
Awatar użytkownika
Spider33
Posty: 1246
Rejestracja: 2008-01-05 12:23
Samochód: Probe x ∞
Galeria: viewtopic.php?t=20740
Lokalizacja: Skarżysko-Kamienna

Re: Reflektory przednie?

Post autor: Spider33 »

One chyba są symetryczne. Nie ma różnicy prawy czy lewy.
Awatar użytkownika
-michal-
Posty: 982
Rejestracja: 2011-12-10 03:04
Samochód: Yugo Koral :P
Lokalizacja: Lublin, Chełm

Re: Reflektory przednie?

Post autor: -michal- »

A czyli jest dobrze, dzięki za słowa otuchy :D

Przed chwilą polazłem do garażu sieknąć foty tego co mi przysłali
Załączniki
IMG_20160706_234656.jpg
IMG_20160706_234749.jpg
IMG_20160706_235015.jpg
IMG_20160706_235121.jpg
Oxanin pierwszej klasy :mrgreen:
Awatar użytkownika
vitek
Klubowicz
Posty: 1749
Rejestracja: 2007-11-22 17:26
Galeria: viewtopic.php?t=13010
Lokalizacja: Skarżysko

Re: Reflektory przednie?

Post autor: vitek »

Wymieniałem u siebie i też były takie same (L=P), ale patrząc na szkła poniżej .... :-k
Załączniki
page.jpg
był Ford Probe 2.0 16V - '96 Grey Green Metallic
jest Mondeo MK3 2.0 16V 145 KM ATX
Awatar użytkownika
-michal-
Posty: 982
Rejestracja: 2011-12-10 03:04
Samochód: Yugo Koral :P
Lokalizacja: Lublin, Chełm

Re: Reflektory przednie?

Post autor: -michal- »

no właśnie byłem pewien, że przyjdzie mi coś w ten deseń :)
Cholera nawet nie mam jak porównać ze starymi kloszami bo jeden gdzieś mi się zapodział, a ten który znalazłem też jest autopal i jest identyczny jak to które kupiłem
Oxanin pierwszej klasy :mrgreen:
Awatar użytkownika
vitek
Klubowicz
Posty: 1749
Rejestracja: 2007-11-22 17:26
Galeria: viewtopic.php?t=13010
Lokalizacja: Skarżysko

Re: Reflektory przednie?

Post autor: vitek »

Już wiem o co chodzi.
Twoje są OK. Na moim foto lewa lampa jest od anglika :D
Załączniki
lapy.jpg
był Ford Probe 2.0 16V - '96 Grey Green Metallic
jest Mondeo MK3 2.0 16V 145 KM ATX
Awatar użytkownika
-michal-
Posty: 982
Rejestracja: 2011-12-10 03:04
Samochód: Yugo Koral :P
Lokalizacja: Lublin, Chełm

Re: Reflektory przednie?

Post autor: -michal- »

Ok, dzięki :) wszystko jasne
Oxanin pierwszej klasy :mrgreen:
Awatar użytkownika
kombiwars
Posty: 145
Rejestracja: 2013-09-05 16:58
Samochód: Probe 96r 16v
Lokalizacja: Świder-Otwock k/Warszawy, Warszawa

Re: Reflektory przednie?

Post autor: kombiwars »

Jest na Allegro:http://allegro.pl/show_item.php?item=5874732667
Zadałem sprzedawcy następujące pytanie:
"Witam. Firma sprzedaje diodowe zamienniki żarówki H4 za niebagatelne sumy, więc mam pytanie: 1/ czy posiadają one certyfikat europejski, oraz 2/ czy spełniają właściwie funkcje oświetlenia drogi przed pojazdem z wyrażnie ukształtowanym snopem światła, tak aby dostecznie oświetlał drogę przez pojazdem i nie oślepiał innych użytkowników ?
Proszę o odp. oraz stosowne materiały wyczerpująco objaśniające zagadnienie. Jestem zainteresowany zakupem.
Pozdr. MŚ
"
- Odpisał:
"Żadne w całej europie nie posiadają certyfikatu
Tak oświetlaja fajnie drogę"

Pytania do klubowiczów: czy ktoś ma zamontowane w chowanych oprawach ledowe zamienniki H4, jak one się spisują, czy nie stwarzają kłopotów w kontaktach z drogówką?.
Czekam na rozwinięcie tematu.
M
ODPOWIEDZ

Wróć do „II gen (1993 - 1997)”